
?
設計風格:新中式
常住人口:5人?
住宅面積:216m2(全屋面積)?
設計門店:江蘇連云港名匠裝飾,別墅裝修公司
設計理念:專心、專注、專業、專攻
別墅裝修中式元素融入我們的居家生活中,通常會選擇一些較深沉的色調或者家具進行裝飾,來表達傳統意蘊中的文化精髓,帶來居室空間的沉穩與大氣,然而有利就有弊,較多的深色調會容易給人產生壓抑的負面作用,所以為了規避這個弊端,我們去瞧瞧設計師是怎么巧妙規劃的吧。

連云港201-300平米別墅新中式風格裝修效果圖
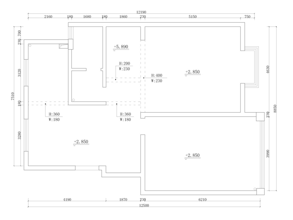
▲? 首層平面圖

連云港201-300平米別墅新中式風格裝修效果圖
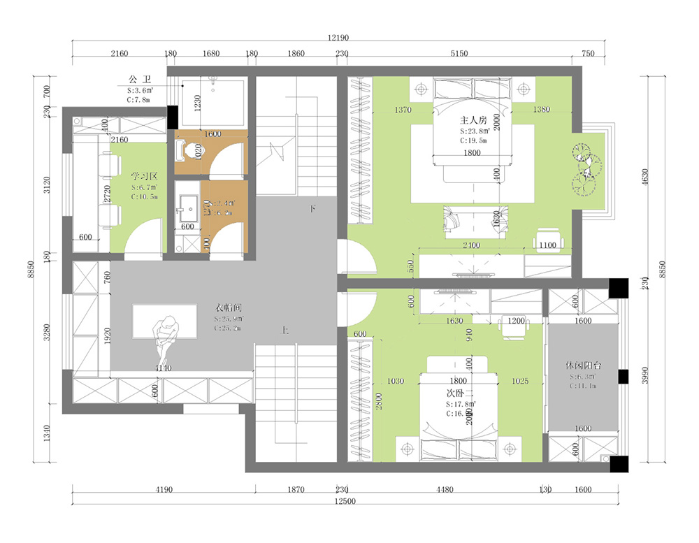
▲? 首層布局圖
別墅玄關裝修案例,玄關一側布置了中式矮腳柜,質樸深沉的原木色搭配著泛著光澤的金屬線條,映襯出家宅的華貴氣質。

連云港201-300平米別墅新中式風格裝修效果圖
別墅走廊裝修案例,繪有中國風圖案的裝飾給人一股優雅傳統的生活意境。簡潔清秀的家具,突破了傳統色彩的制約,以淺淡素雅的色澤,中和原木色的深沉,沖淡其帶來的壓抑感,與此同時又增強了室內的明亮度,給人清爽怡人的感覺。

連云港201-300平米別墅新中式風格裝修效果圖
別墅客廳裝修案例,大理石電視背景墻,搭配鏤空木制隔斷,沉穩之中顯露著輕奢意蘊,展現著豪宅大氣風范;天花設計的簡約精致,搭配著金屬線條壓邊,很有層次感。

連云港201-300平米別墅新中式風格裝修效果圖
別墅餐廳裝修案例,餐廳選擇了與客廳同款式風格的家具,保證了全屋風格的統一性,在現代生活的氣氛之中和諧的融入中式元素,營造出清凈雅致的就餐氛圍。

連云港201-300平米別墅新中式風格裝修效果圖
別墅二層裝修案例,別墅二層是一家人睡眠休息的場所,為了保證家人休息環境的安逸與舒適,無論時光環境還是全屋的色彩、布置,設計師巧妙構思,進而為一家人筑就更加溫暖舒適的休息空間。

連云港201-300平米別墅新中式風格裝修效果圖
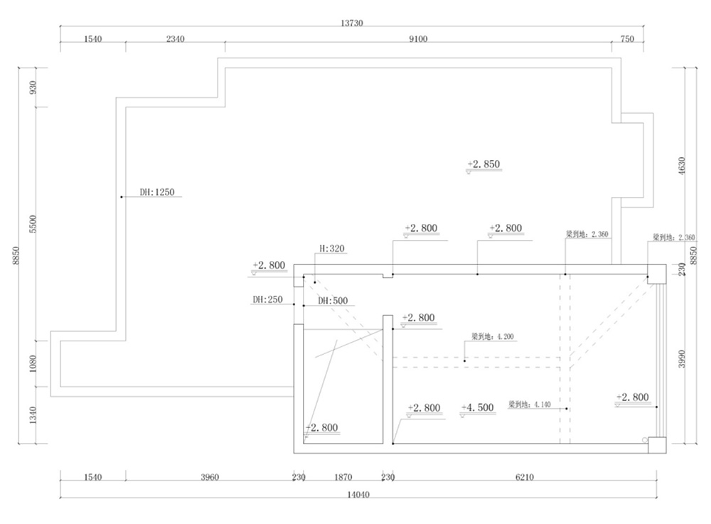
▲? 二層平面圖

連云港201-300平米別墅新中式風格裝修效果圖
▲? 二層布局圖
別墅主臥裝修案例,大落地窗設計,帶來更充足的光照,即使室內采用深色的實木地板,也不會顯得黯淡無光,反而令家人的休息睡眠空間不僅更加沉穩大氣,同時也更加的溫暖舒適。生態木板定制的衣柜整齊排列在一側,純凈的象牙白與淳樸的原木色相搭配,為室內帶來自然的溫暖感覺之外,更是營造出靜雅清爽的意味。

連云港201-300平米別墅新中式風格裝修效果圖
別墅臥室裝修案例,同時,我們的設計師也為業主提供了更多的選擇,地板換做人字形鋪貼方式,兩個長條木地板90°拼貼,更好的展現空間的張力,讓原本單調的地面空間更具有美感。

連云港201-300平米別墅新中式風格裝修效果圖
別墅三層裝修案例,上至三層,是業主家的頂層戶外花園,有著一間清凈雅致的茶室,透過落地窗可以靜賞室外秀麗精致,仿若于山水自然之中,品茗觀景,生活頗為自在悠閑。

連云港201-300平米別墅新中式風格裝修效果圖

連云港201-300平米別墅新中式風格裝修效果圖
別墅庭院裝修案例,將中國的傳統文化融入到現代人的生活方式中,使之既能傳達出中式的傳統神韻,又能符合現代人的生活與審美需求,兼容并蓄,追求創新無疑是對新中式風格最好的詮釋
廣州101-200平米新中式風格室內裝修設計案例
新中式風格101-200平米三居室
惠州201-300平米新中式風格保利林語裝修設計案例
新中式風格201-300平米別墅
惠州201-300平米新中式風格景安花園室內裝修設計案例
新中式風格201-300平米四居室
江門201-300平米新中式風格白云尚城裝修設計效果圖
新中式風格201-300平米別墅
惠州101-200平米新中式風格榮泰河庭家裝設計效果圖
新中式風格101-200平米三居室
柳州201-300平米新中式風格大信海岸家園家裝設計案例
新中式風格201-300平米別墅
中山101-200平米新中式風格國韻飄香裝修設計案例
新中式風格101-200平米平層
江門101-200平米新中式風格雍逸廷室內裝修設計案例
新中式風格101-200平米四居室